Добро пожаловать на http://vipplan.ru

Випплан Черногорск - это тысячи проектов домов в нашем каталоге!

Вы всегда сможете найти для себя проект дома вашей мечты! Даже если этого не случилось, мы готовы в любую минуту предложить проект индивидуального дома.

Забыли пароль?
Вы еще не регистрировались?

Перейдите по ссылке ниже на страницу регистрации.

Регистрация...

Внимание!!!

В проектную документацию могут быть внесены изменения любой сложности, в соответствии в Вашими пожеланиями!

Полезные статьи

Комбинированные дома

Посмотрите, насколько далеко шагнула архитектура за последние десятилетия. Сколько изменилось в облике современных городов. А задумывались ли наши родители, о том что они увидят необыкновенные небоскребы и элитные многоквартирные дома, чьи фасады напоминают обруганную капиталистическую действительность. У людей появилась возможность построить дом за городом и в тишине на природе, реализовать любые дизайнерские фантазии. Те, кто может позволить себе частный дом, не ограничены финансами. Для многих частный дом – это показатель их материального благополучия, поэтому никто из них не хочет испол...

Перекрытия в доме

Перекрытия – одно из важнейших составляющих строящегося дома. Это горизонтальная внутренняя защитная конструкция, разделяющая по уровню смежные помещения дома. По назначению выделяют подвальные, межэтажные и чердачные перекрытия. При проектировании домов и зданий различного назначения, требования к межэтажным перекрытиям определяются их местоположением и функциями разделяемых помещений: надподвальные, межэтажные, чердачные и т.д....

Проекты домов и коттеджей > Каталог проектов домов > Проект индивидуального коттеджа с мансардным этажом Vg1472

Проект индивидуального коттеджа с мансардным этажом Vg1472

Проект индивидуального  коттеджа с мансардным этажом
Зарегистрируйтесь

Проект № Vg1472


Техническое описание
Общая площадь: 215.31 м2
Жилая площадь: 108.06 м2
Высота здания: 7.28 м
Размеры дома: 14.94м×15.64м
Цокольный этаж: нет
Гараж: нет
Мансарда: есть

Kонструкция
Фундамент: Ленточный
Перекрытия: Сборные ж/б
Материал стен: Бетонные блоки

Архитектурный раздел
Конструктивный раздел
Инженерный раздел
АР+КР - 64 000 (Со скидкой 20%)
АР+КР+ИР - 139 250 (Со скидкой 50%)
Индивидуальный проект одноэтажного дома с мансардой с размерами здания 14,94 x 15,64м. Наружная отделка здания - облицовочный кирпич 2х цветов. Отделка вентканалов и дымоходов - клинкерная плитка. Отделка дымохода из гостиной - облицовочный кирпич. Цоколь - отделка клинкерной плиткой. Фундамент - ленточный, монолитный, ж/б. Наружные стены: газобетонные блоки, минеральная вата, вент.зазор, облицовочный кирпич . Внутренние стены -газобетонные блоки. Перегородки – кирпич забутовочный. Перемычки монолитные и сварные из профиля проката. Отделка вентканалов и дымоходов - облицовочный кирпич/клинкерная плитка. Пол первого этажа - пол по грунту. Межэтажное перекрытие: сборные ж/б плиты перекрытия. Потолок мансардного этажа - по затяжкам стропильной системы. Крыша двускатная. Покрытие– металлочерепица. Лестница - выполняется по индивидуальному заказу. Окна - металлопластиковые, выполненные по индивидуальному заказу.
Генплан застройки участка / Паспорт проекта 7000 руб / 10000 руб
Инженерный раздел (полный) 75250 руб (107500 руб)
Смета на строительство 53750 руб
Теплотехнический расчет материалов стен Бесплатно
Стоимость проекта со незначительнми изменениями 74600 руб
Стоимость проекта со средними изменениями* 90800 руб
Стоимость проекта со значительными изменениями** 95100 руб

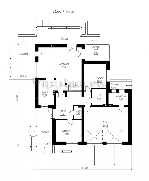
План первого этажа


Холл — 16,47 м2
С/у — 2,32 м2
Гостиная — 37,54 м2
Кухня — 10,18 м2
Спальня — 13,60 м2
Спальня — 13,42 м2
С/у — 5,41 м2
Бойлерная — 5,84 м2
Гараж — 38,16 м2
Зимний сад — 8,94 м2

План мансардного этажа


Холл — 26,56 м2
Помещение — 22,01 м2
С/у — 6,51 м2
Спальня — 21,49 м2
Проект индивидуального  коттеджа с мансардным этажом Проект индивидуального  коттеджа с мансардным этажом Проект индивидуального  коттеджа с мансардным этажом Проект индивидуального  коттеджа с мансардным этажом
Внесение изменений и привязка к участку строительства

В любой из проектов от компании VIPplan - Черногорск по вашему желанию могут быть внесены изменения в материалы стен, материалы наружной отделки дома, а также будет произведена адаптация проекта под конкретный регион строительства (с учетом грунтов региона, геологических особенностей вашего участка и местных климатических условий) - БЕСПЛАТНО !!! (кроме проектов со скидкой и проектов наших партнеров).

Любой из проектов, размещенных на сайте chernogorsk.vipplan.ru мы можем выполнить из требуемых вам строительных материалов: ячеистый бетон (газобетон, пеноблок), керамоблок, кирпич, шлакоблок, бетонный блок, дерево (брус, клееный брус), каркасная технология (деревянный каркас, металлокаркас (ЛСТК)).

Фасад дома и его наружную отделку так же возможно выполнить с применением различных облицовочных материалов: структурной штукатурки, (с утеплителем и без), сайдингом (пластиковый или металлосайдинг), фиброплитами, кирпича.

 
6 Избранные
проекты

Доставка проектов по России: Москва (Московская область), Санкт-Петербург (Ленинградская область), Краснодар, Ростов-на-Дону, Ставрополь, Сочи, Волгоград, Новосибирск, Белгород, Брянск, Воронеж, Саратов, Хабаровск, Астрахань, Нальчик, Владикавказ, Екатеринбург, Тюмень, Самара, Нижний Новгород, Казань, Пермь, Уфа, Челябинск, Красноярск, Ханты-Мансийск, Иркутск, Курган, Оренбург, Омск, Томск, Барнаул, Новокузнецк, Кемерово, Абакан, Чита, Якутск, Южно-Сахалинск, Петропавловск-Камчатский и страны ближнего зарубежья: Белоруссия, Украина, Казахстан